THE EASY WAY: little red
arrow marks the north-west corner of WTHR where a stairway will take
you to the 5th. The door is well marked. Look for the small number 560 above the door
and the name LINDA SWIHART on the door!!
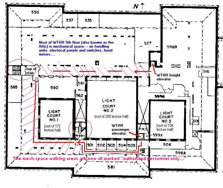
Only two of the five stairways in the WTHR building lead to the fifth floor (attic) and one of those brings you up to an area quite a strange hike from 560 and 561. See WTHR 5th floor diagram below.
Below is the WTHR 5th FLOOR PLAN: The only two stairways that go up to this floor are circled. Most of the fifth floor is mechanical space. There are TA offices on the north side of the south hall (501 - 505) and the rooms 560, 561 and 562 around by the Northwest corner. Most of the other numbered shown below are are cages, pipe chases, mechanical shafts, or air intake passages, not rooms in the traditional sense. Every approach except the NW stairway goes through space marked "AUTHORIZED PERSONNEL ONLY..."
